Bahram BATENI
Home
WhoAmI
Architecture
Photoshoot
Music
Painting
Contact
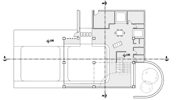
Plan-1
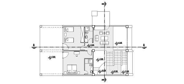
Plan GL
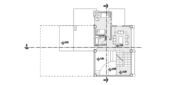
Plan +1
Plan+2
Section B-B
Section A-A